106 N. Harrison Street, Easton, MD 21601
410.770.9081
Residential & Housing
Trappe, Maryland
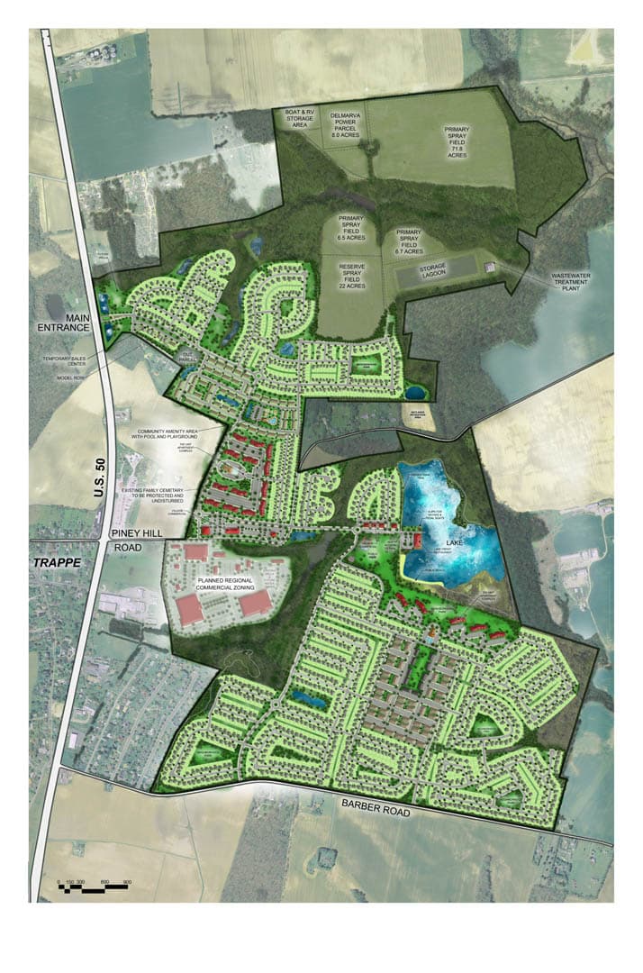
Development and civil engineering design services for the proposed 2,501 multi-unit Lakeside residential development in Trappe, Maryland. Responsibilities include land planning for lake and recreational amenities, wastewater treatment plant and water transportation network, grading, stormwater management, and environmental protection. Phase 1 includes 500 units, a wastewater treatment plant, water infrastructure, and entrance design.
Project Photography









































What we delivered
Land planning for 2,501 multi-unit residential development
Wastewater treatment plant and water infrastructure design
Complete bicycle and pedestrian trail network
Stormwater management and environmental protection
Phase 1: 500 units with WWTP and water infrastructure
Get in touch
Every project starts the same way: with a conversation about what matters most to you. Let's sit down and talk about yours.